NEWS
Architecture
Media & Entertainment
ABOUT
CONTACT
ARCHIJAY
NEWS
Architecture
Media & Entertainment
ABOUT
CONTACT
ARCHIJAY
DesignJay DesignJay

You may also like

Urban
Analysis
Sturucture
Analysis
ENVIROMENT
신동아1,2차아파트 일조 시뮬레이션 테스트
Lighting Design
Environment
Analysis
Environment
Analysis
Sturucture
Analysis
Enviroment
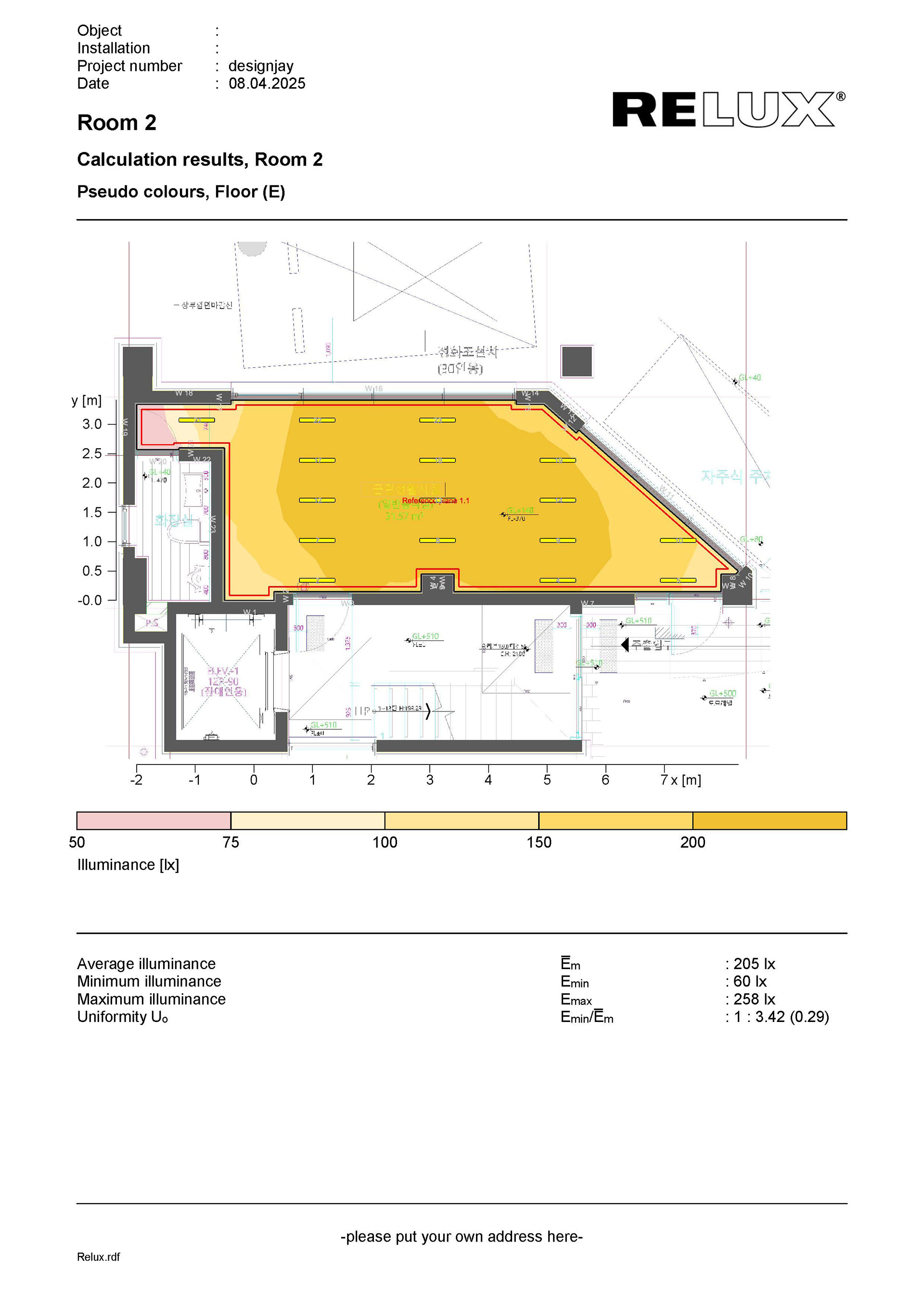
실내 일조(조도*휘도) 시뮬레이션
Enviroment
서울시 통합심의 일조시뮬레이션
Real time
실시간 고화질 체험형 시스템
↑Back to Top
© DesignJay Visual Solutions. All Rights Reserved.